Greencube 150
KÜSI PERSONAALSET PAKKUMIST!
Greencube 150 on 149.60 ruutmeetrine moderne elamu, mis on mõeldud aastaringseks elamiseks. Hoone talakonstruktsioon on liimpuidust (GL-24 tugevus; 120×360). Ja kogu hoonel kasutatav puitpruss on C24 tugevussordist. Kahelt poolt on prussid kaetud OSB plaadiga, mis annab hoonele jäikuse.

Iga detail on oluline!
Greencube majatehas paneb suurt rõhku ka kõige pisemale detailile.
Iga hoone, mis meie tehasest väljub, peab olema perfektne.
Kõik vajalik on vajadusel juba olemas!
Kliendi soovil paigaldatakse hoonesse kõik vajalik koheseks kasutamiseks!


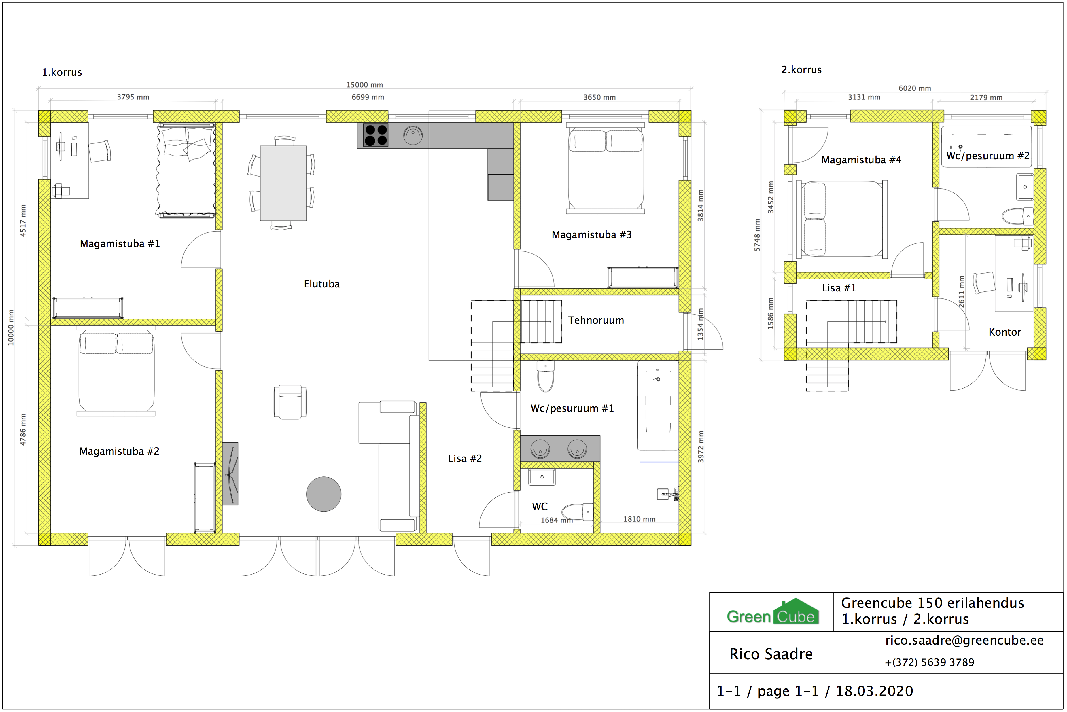
Soovituslikud
põhjaplaanid


Transport ja paigaldus
Hoone ühendatakse kommunikatsioonidega (elekter, vesi, kanalisatsioon) enne hoone lõplikku üleandmist.
•Hoonete ehitamist on võimalik jälgida tulles tööpäeval objektile.
•Hooned valmistatakse Lihulas asuvas tootmishoones. Eesmärk tagada parim kvaliteet ja mõistlik ehituskiirus.
•Ühe hoone valmistamiseks oleme planeerinud keskmiselt 10 nädalat.
Peale valmimist hooned pakitakse transportimiseks ning ladustatakse tootmishoone valvega krundile transporti ootama.
